Stair Handrail Height Nz

Barriers And Handrails Building Performance

Barriers And Handrails Building Performance

Handrails Handrails Should Be Easy To Grasp And Provide Maximum Support Universal Design Tool

Handrails Handrails Should Be Easy To Grasp And Provide Maximum Support Universal Design Tool

Handrail Requirements To Ensure Compliance On Stairways And Ramps Moddex

Handrail Requirements To Ensure Compliance On Stairways And Ramps Moddex

Handrail Requirements To Ensure Compliance On Stairways And Ramps Moddex

Handrail Requirements To Ensure Compliance On Stairways And Ramps Moddex

Barriers And Handrails Building Performance

Barriers And Handrails Building Performance

Summary Of Handrail Requirements Under The Nzbc Moddex

Summary Of Handrail Requirements Under The Nzbc Moddex

Summary Of Handrail Requirements Under The Nzbc Moddex

14 Height clearances 18 15 Obstructions 18 16 Structural stability 20.

Stair handrail height nz. Handrail Profile requirements under the New Zealand Building Code As noted in NZBC Clause D1 Access Routes accessible stairways and accessible ramps shall have handrails provided on both sides. Established in 1992 we have been helping builders around New Zealand to achieve with accurate and on time staircase supply. Top rail The upper rail supporting the barrier infill which may also act as a handrail.

You can check current stair regulations in full here PDF. Position handrails to the optimal user height. Handrail and Balustrade Regulations in New Zealand 21 April 2021 As manufacturers of quality stairs we know there are many terms that can confuse and even create uncertainty when it comes to your home or building.

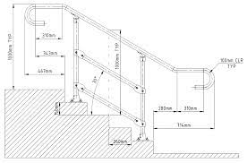
2500 190 1316 The maximum allowed riser height is 190 mm so 14 risers are needed. 2500 14 1786 mm There is always one more riser than treads. The top rail must be at least 42 inches in height 191029f1iiB and the handrail must be 30 to 38 inches in height 191029f1i as measured at the leading edge of the stair tread to the top surface of the rail.

There is currently no specified minimum width in the Building Code. Ensure handrails are easy to identify visually against their background. Enhance an existing staircase or mezzanine floor with architectural balustrades and handrails without the need to employ a building contractor.

Now calculate the actual riser height. Service stairway or accessible stairway. Ensure handrails are continuous and provided to each side of a stair throughout its length including intermediate landings where this does not obstruct the use of adjoining access routes with no sudden changes of height or position.

NZ building regulations relate to the height depth and pitch of the stairs along with the safety barriers balustrades and handrails which are compulsory on all stairs in NZ. Dual height handrails provide for a wider range of users. If you are a builder or developer in NZ looking for a reliable stair supplier youve come to the right place.

Handrail Requirements To Ensure Compliance On Stairways And Ramps Moddex

Handrail Requirements To Ensure Compliance On Stairways And Ramps Moddex

Deck Back To Basics Tv One Tvnz Co Nz

Deck Back To Basics Tv One Tvnz Co Nz

Handrail Terminations At The Top Bottom Of Stairs Under As1428 1 2021 Moddex

Handrail Terminations At The Top Bottom Of Stairs Under As1428 1 2021 Moddex

External Stairs For Houses Branz Build

External Stairs For Houses Branz Build

Stair Railing Height Saferack S Industrial Index

Stair Railing Height Saferack S Industrial Index

Stairway Location And Handrail Extensions At An Internal Corridor Moddex

Stairway Location And Handrail Extensions At An Internal Corridor Moddex

Source : pinterest.com