House Stairs Measurements

Standard Residential Staircase Dimensions Google Search Stairway Design Staircase Drawing Staircase Layout

Standard Residential Staircase Dimensions Google Search Stairway Design Staircase Drawing Staircase Layout

Staircase Dimensions Staircase Design Spiral Stairs Design Stairs

Staircase Dimensions Staircase Design Spiral Stairs Design Stairs

Understanding The Design Construction Of Stairs Staircases Stairs Floor Plan Staircase Dimensions Stair Dimensions

Understanding The Design Construction Of Stairs Staircases Stairs Floor Plan Staircase Dimensions Stair Dimensions

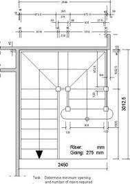
Http Boeingconsult Com Tafe Dwg Dwg2 Stair Detail Gif Stairway Design Staircase Interior Design Stair Dimensions

Http Boeingconsult Com Tafe Dwg Dwg2 Stair Detail Gif Stairway Design Staircase Interior Design Stair Dimensions

Stair Design Rules And Formulas Building Comfortable Stairs Stairs Design Staircase Layout Stair Plan

Stair Design Rules And Formulas Building Comfortable Stairs Stairs Design Staircase Layout Stair Plan

Stair Dimensions Floor Plan In Feet Spiral Stairs Design Stairs Design Simple Floor Plans

Stair Dimensions Floor Plan In Feet Spiral Stairs Design Stairs Design Simple Floor Plans

Stair Dimensions Floor Plan In Feet Spiral Stairs Design Stairs Design Simple Floor Plans

270 mm in from the outer side of the unobstructed width of the stairway if the stairway is less than 1 m wide.

House stairs measurements. Step riser specifications riser height. A standard real life stair riser height is 8. The stair width refers to how wide the top of each stair is and it is perpendicular to the rise of each step.

For example the total run in our hypothetical example is 130 inches 330 cm. In this video we will show you how to. The average minimum width for each stair is 36 inches 91 cm but you can make the stairs wider if desired.

The width of the stairs should be 3 ft 6 inches. Staircase Drawing Stairs And Staircase Building Stairs Staircase Design Staircase Ideas House Stairs U Shaped Stairs Ing Civil Stairs. Typically there should be about 80 inches or about 6 feet and 8 inches between any stair and the upper surface above it at any given point along the staircase.

That is the number I will use. Our stair stringers range from 1-17 treads steps and are made for standard rise and going and work on a 1000mm between centres of the stringers. 36 Inches Minimum Staircase width refers to the side-to-side distance if you were walking up or down the stairs.

This is the same as the total width of the staircase as well. That equals75 in 112 scale. EZ Stairs Free Stair Calculator.

13 total steps x 10 inches 25 cm tread width each 130 inches 330 cm total run. Some codes specify slightly taller stair risers from 8 to 8 14 Canada for example. A landing is that platform at the end of each step flight.

How To Measure Your Staircase For Wainscoting Panels Wainscoting Height Stairway Wainscoting Wainscoting Panels

How To Measure Your Staircase For Wainscoting Panels Wainscoting Height Stairway Wainscoting Wainscoting Panels

Stair Tread Depth Stair Rise And Run Stair Dimensions Stairs Measurements

Stair Tread Depth Stair Rise And Run Stair Dimensions Stairs Measurements

Calculate The Dimensions Of Your Straight Staircase Stairway Design Home Stairs Design Spiral Staircase Dimensions

Calculate The Dimensions Of Your Straight Staircase Stairway Design Home Stairs Design Spiral Staircase Dimensions

Outside Step Dimensions Method Of A Deck Construction Table A Building Stairs Deck Construction Deck Stairs

Outside Step Dimensions Method Of A Deck Construction Table A Building Stairs Deck Construction Deck Stairs

Pin On Stairs

Pin On Stairs

Key Measurements For A Heavenly Stairway Stairs Architecture Building Stairs Staircase Design

Key Measurements For A Heavenly Stairway Stairs Architecture Building Stairs Staircase Design

Source : pinterest.com