Front Side Stairs Design

Front Staircase Design Home Stair Designs Recipe In 2021 Village House Design Architecture House Duplex House Design

Front Staircase Design Home Stair Designs Recipe In 2021 Village House Design Architecture House Duplex House Design

Front Elevation And Side Elevation Of Staircase Units Along With Spiral And Straight Stair Layout Plan Railing Des Stair Detail Stair Layout Stairs Floor Plan

Front Elevation And Side Elevation Of Staircase Units Along With Spiral And Straight Stair Layout Plan Railing Des Stair Detail Stair Layout Stairs Floor Plan

Pin On House Stairs

Pin On House Stairs

16 Lovely Front Door Hanger Ideas For Beautify Entryway Front Porch Steps Front Porch Design Front Porch Deck

16 Lovely Front Door Hanger Ideas For Beautify Entryway Front Porch Steps Front Porch Design Front Porch Deck

Horizontal Stair Railing Design Stair Railing Design Modern Stair Railing Handrail Design

Horizontal Stair Railing Design Stair Railing Design Modern Stair Railing Handrail Design

Indian Staircase Tower Designs Small House Front Design House Front Design Tower Design

Indian Staircase Tower Designs Small House Front Design House Front Design Tower Design

Indian Staircase Tower Designs Small House Front Design House Front Design Tower Design

A two-story wide stone steps flanked by short bushes on either side add style to your entrance.

Front side stairs design. This bullnose extends out from the side of the stairs and is usually curved or rounded on its edges. The space under the staircase can be designed as a storeroom. Design requirements for front elevation stairs Width of stairs width of stairs for single family house 75 centimetres and if the users number is more than 10 minimum width of stairs should be 95 centimetres whereas width of stairs for two or more family homes should be 100 centimetres and if the users number is more than 10 width of stair should be 125 cm.

Wires can be crisscrossed to form an attractive. The use of stone on the exterior is mostly related to building with stone cladding of the facades making fences making communication areas stairs terraces etc. Thirdly placing a screen between the front.

For example hide it behind the wall and enclose it with two walls which will not cut off the aura field but double your sense of security while going upstairs or downstairs. Front porch and stairs designs photos. Your contractor can help you with this.

The newel might be designed to mimic the shape of the homes front porch columns. Others may bore you irk you or leave you feeling dissatisfied. See more ideas about porch steps front porch steps decks and porches.

Here are selected photos on this topic but full relevance is not guaranteed If you find that some photos violates copyright or have unacceptable properties please inform us about it. Outdoor Front Stair Design. Browse 20879 photos of front porch steps and landing redo.

DIY Front Porch Steps. Firstly changing the direction of the stair. Part of a front porch makeover all this fun update took was five minutes and a 5 package of waterproof vinyl numbers.

48 Best Of Minimalist Houses Design 5 Fieltro Net House Architecture Design Modern House Plans Minimalist House Design

48 Best Of Minimalist Houses Design 5 Fieltro Net House Architecture Design Modern House Plans Minimalist House Design

Wider Steps Simple Columns Railing Nice Colors Maybe For Our Home Exterior Stairs Front Door Steps Front Porch Steps

Wider Steps Simple Columns Railing Nice Colors Maybe For Our Home Exterior Stairs Front Door Steps Front Porch Steps

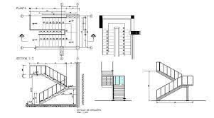
Stair Section Plan In Autocad File Which Provide Detail Of Front View Detail Of Side View Detail D Staircase Architecture Stairway Design Stairs Architecture

Stair Section Plan In Autocad File Which Provide Detail Of Front View Detail Of Side View Detail D Staircase Architecture Stairway Design Stairs Architecture

Simple Maintenance Free Steps For A Side Door Entry Classic Gray Decking And Fascia With White Aluminum Rai Front Door Steps Exterior Stairs House With Porch

Simple Maintenance Free Steps For A Side Door Entry Classic Gray Decking And Fascia With White Aluminum Rai Front Door Steps Exterior Stairs House With Porch

Style Scandinave En Ontario Planete Deco A Homes World House Styles Staircase Design Home

Style Scandinave En Ontario Planete Deco A Homes World House Styles Staircase Design Home

Side Door Steps Front Porch Steps Front Door Steps Patio Stairs

Side Door Steps Front Porch Steps Front Door Steps Patio Stairs

Source : pinterest.com