Floor Plan Stairs Arrow

Revit 2013 Stair Arrows Stairs Arrow Floor Plans

Revit 2013 Stair Arrows Stairs Arrow Floor Plans

Floor Plan Symbols Floor Plan Symbols Stairs Floor Plan Flooring For Stairs

Floor Plan Symbols Floor Plan Symbols Stairs Floor Plan Flooring For Stairs

Stairs Plan View Stairs Pinned By Www Modlar Com Stair Plan Stairs Design Stairs Architecture

Stairs Plan View Stairs Pinned By Www Modlar Com Stair Plan Stairs Design Stairs Architecture

Design Elements Building Core Building Core Vector Stencils Library Urinals Floor Plan Stairs Floor Plan Hotel Floor Plan Floor Plans

Design Elements Building Core Building Core Vector Stencils Library Urinals Floor Plan Stairs Floor Plan Hotel Floor Plan Floor Plans

Adding Ramp Slope Arrow And Stair Path Arrow Learn Revit Layout Architecture Concept Architecture

Adding Ramp Slope Arrow And Stair Path Arrow Learn Revit Layout Architecture Concept Architecture

Floor Plan Symbols Floor Plan Symbols Floor Plans How To Plan

Floor Plan Symbols Floor Plan Symbols Floor Plans How To Plan

Floor Plan Symbols Floor Plan Symbols Floor Plans How To Plan

Here is yet another inconsistency with the not so new Revit stair tools.

Floor plan stairs arrow. I have the cut plan set 12 above this levels elevation. I have checked the project levels and they are set correctly. Unfortunately different people seem to be taught different conventions.

Stairs are drawn as a series of rectangles usually with a direction arrow indicating whether the stairs travel up to the next higher floor. The staircase is also a very important part of the architectural plan as stairs take up a significant amount of floor space so accurately representing the staircase is vital. The best selection of Royalty Free Floor Plan Stairs Vector Art Graphics and Stock Illustrations.

Stairs take up a significant amount of floor space and have an effect on headroom so accurately showing the stair in plan is very important. These days it is most common to have the arrow pointing up but I occasionally still strike plans drawn by people who didnt get the memo. Download 98 Royalty Free Floor Plan Stairs Vector Images.

The stair path is hidden on the floor plan. Consider the layout of the building and which places are convenient to move between floors. A floor plan is a birds-eye view of each floor of a building abstracted as though there is no roof and only a few basic structural elements in the building such as walls and doors.

Because stairs are so common in architectural floor plans there are shorthands and symbols for stairs that make drawing them a simple and straightforward task. A stairway is a very significant architectural element. Colorful Vertical Upward Timeline.

Attached is what my Display Properties. Drawn as a series of parallel lines a staircase also has an arrow and a. All hidden elements display in color and visible elements display in half-tone check the.

30 Trendy Flooring Plans Symbols Floor Plan Symbols Kitchen Floor Plans Kitchen Floor Plan

30 Trendy Flooring Plans Symbols Floor Plan Symbols Kitchen Floor Plans Kitchen Floor Plan

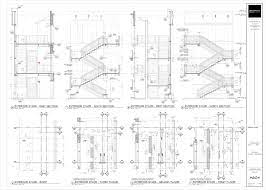
Stairs Are Complicated Life Of An Architect Stairs Elevation Drawing Stairs Section Architecture Stairs Detail Drawing

Stairs Are Complicated Life Of An Architect Stairs Elevation Drawing Stairs Section Architecture Stairs Detail Drawing

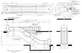
Escalator Lay Out And Dimension Escalator Elevator Design Architecture Details

Escalator Lay Out And Dimension Escalator Elevator Design Architecture Details

Pin On Ver

Pin On Ver

Marine Parade By Dorrington Atcheson Architect Homeadore Marine Parade Architect How To Plan

Marine Parade By Dorrington Atcheson Architect Homeadore Marine Parade Architect How To Plan

Floor Plan Symbols 4 Floor Plan Symbols Floor Plan Drawing Free Floor Plans

Floor Plan Symbols 4 Floor Plan Symbols Floor Plan Drawing Free Floor Plans

Source : pinterest.com