Floating Stairs Detail

Cantilevered Staircase Fixing Detail Stairs Design Staircase Design Stairs Design Modern

Cantilevered Staircase Fixing Detail Stairs Design Staircase Design Stairs Design Modern

Floating Stairs Structural Details In 2021 Stairs Design Stair Design Architecture Stairs Design Modern

Floating Stairs Structural Details In 2021 Stairs Design Stair Design Architecture Stairs Design Modern

Pin On Stairs

Pin On Stairs

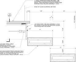
Detailed Drawing For A Cantilevered Stair Assembly Design Construction Architecture Floating Sta Stairs Architecture Floating Staircase Cantilever Stairs

Detailed Drawing For A Cantilevered Stair Assembly Design Construction Architecture Floating Sta Stairs Architecture Floating Staircase Cantilever Stairs

Steel Structure Tim Với Google Stairs Floating Stairs Cantilever Stairs

Steel Structure Tim Với Google Stairs Floating Stairs Cantilever Stairs

Process The Green Street House Floating Stairs Floating Staircase Stair Detail

Process The Green Street House Floating Stairs Floating Staircase Stair Detail

Process The Green Street House Floating Stairs Floating Staircase Stair Detail

The three steps up would require 1x6 or 2x6 lumber because the floating effect required a 2x4 to fill in under the step.

Floating stairs detail. Engineering or Building Services. A floating staircase is essentially an aesthetically deconstructed staircase where the extraneous parts and pieces have been removed to reveal the basic components a staircase must possess to enable people to climb and descend safely throughout a space. Floating staircases are designed to minimize or hide the supporting structure of the staircase.

This gives impression that the stair treads are floating. Floating stairs are popular in open concept spaces. It has been designed in wooden ply board supported by MS angle and strips.

1 12 nominal steel pipe handrail. EngJP Structural 15 Jan 13 1357. With over 5000 configurable options you can find the staircase that meets your visionOur in-house engineers develop open frames that are structurally sound and aesthetically pleasing.

The treads would be field welded. Paragon provides custom designed and manufactured floating stairs for commercial and residential projects. Handrails should not be less than 36 inches in height.

Floating stairs can also be applied when you have spiral or U-shaped stairs. Steps has been designed in wooden ply board supported by MS angle and strips. Floating Stairs - Floating Staircase - Stairs Design - Floating Stairs Design In UrduHindi - YouTube.

Specify all the different types of materials. Indoor Floating Staircase Kits. The step rise should be a minimum of 4 inches and a maximum of 7 inches.

Cantilevered Staircase Design Tutorial Floating Staircase Staircase Design Cantilever Stairs

Cantilevered Staircase Design Tutorial Floating Staircase Staircase Design Cantilever Stairs

Design Is In The Details 10 Cantilevered Stair Designs Studio Mm Architect Stairs Design Stairs Design Modern Floating Stairs

Design Is In The Details 10 Cantilevered Stair Designs Studio Mm Architect Stairs Design Stairs Design Modern Floating Stairs

Pin On Stairs

Pin On Stairs

Cantilever Stairs Steps Cross Section Reinforcement Detail Cantilever Stairs Stair Steps Stairs

Cantilever Stairs Steps Cross Section Reinforcement Detail Cantilever Stairs Stair Steps Stairs

Pin By John Sumang On Schody Idei Cantilever Stairs Concrete Stairs Stairs

Pin By John Sumang On Schody Idei Cantilever Stairs Concrete Stairs Stairs

Cantilevered Staircase Fixing Detail In 2021 Cantilever Stairs Staircase Design House Design

Cantilevered Staircase Fixing Detail In 2021 Cantilever Stairs Staircase Design House Design

Source : pinterest.com