Emergency Stairs Plan

Fire Stair Dimensions Stair Plan Stairs Floor Plan Stair Dimensions

Fire Stair Dimensions Stair Plan Stairs Floor Plan Stair Dimensions

Stair Plan Fire Escape Staircase Architecture

Stair Plan Fire Escape Staircase Architecture

Image Result For Emergency Staircase Dimensions Stairs Floor Plan Stair Plan Staircase Design

Image Result For Emergency Staircase Dimensions Stairs Floor Plan Stair Plan Staircase Design

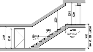
Pin On Escaleras

Pin On Escaleras

Required Stair Width Is Determined By The Required Egress Capacity Of Each Floor The Stair Serves Considered Independentl Stairs Width Stairs Design Stairs

Required Stair Width Is Determined By The Required Egress Capacity Of Each Floor The Stair Serves Considered Independentl Stairs Width Stairs Design Stairs

Staircase To Wyggeston Queen Elizabeth 1 College Leicester Uk Fire Exit Stairs Emergency Exit Stairs Staircase

Staircase To Wyggeston Queen Elizabeth 1 College Leicester Uk Fire Exit Stairs Emergency Exit Stairs Staircase

Staircase To Wyggeston Queen Elizabeth 1 College Leicester Uk Fire Exit Stairs Emergency Exit Stairs Staircase

So every members opinions will also matter.

Emergency stairs plan. Kindly follow these steps. Form Your Planning Team. Gather reliable people to work within the emergency planning.

Download Emergency stairs stock photos. In order to be as prepared as possible for the needs of everyone the emergency plan must consider those persons needing extra assistance as well as the responders assisting them. An emergency action plan should not just be made and considered by one person.

Hazard symbols are recognizable symbols designed to warn about hazardous materials locations or objects including electric currents poisons and other things. An emergency plan is a written set of instructions that outlines what workers and others at the workplace should do in an emergency. For this reason most fire stairs will be constructed to allow occupants time to safely leave the building.

The fire escape plan shows the location of fire alarm and extinguishing equipment stairs and emergency exits and evacuation orders and path. The Five Stages of an Emergency Management Plan While safety professionals generally divide emergency management plans into four basic stages I believe there are five. R Rationale - Clause 231c The fire escape plan serves to orientate and guide the building occupants and public on the egress routes during an emergency.

Contact the Emergency Coordinator via the contact information located on your recall roster and let them know what stairwell you are located in and that you have arrived there safely with the person needing assistance. In preparing an emergency plan consider. Moreover they could be used as a refuge for less mobile occupants who need assistance to evacuate.

The nature of the work being carried out at the workplace. These plans should be placed at common areas where the public and occupants of the building are most likely to frequent or use and can locate them easily. Steps office stairs evacuation emergency stair alarm fire and smoke hang pipe fire extinguisher and fire hose fire smoke at the house fire hose cabinet office steps run to exit.

Presentation Year5 Page28 Detail Emergency Stair Kreatif

Presentation Year5 Page28 Detail Emergency Stair Kreatif

Stair Plan Egress Skyscraper Architecture

Stair Plan Egress Skyscraper Architecture

Emergency Exit Stairs Stairway Design Steel Stairs Design Balcony Railing Design

Emergency Exit Stairs Stairway Design Steel Stairs Design Balcony Railing Design

Merdivenler Agac Evler

Merdivenler Agac Evler

Tanzakademie 2014 Stair Plan Egress Building Code

Tanzakademie 2014 Stair Plan Egress Building Code

Required Stair Width Is Determined By The Required Egress Capacity Of Each Floor The Stair Serves Considered In Stair Dimensions Stair Layout Stairs Design

Required Stair Width Is Determined By The Required Egress Capacity Of Each Floor The Stair Serves Considered In Stair Dimensions Stair Layout Stairs Design

Source : pinterest.com